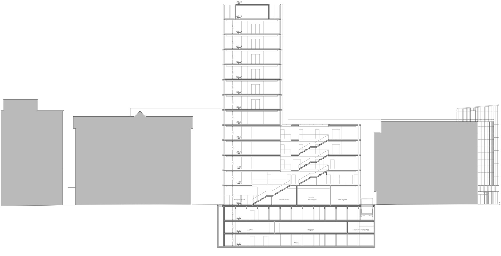
Palazzo della Provincia Autonoma, Bolzano, 2011

Palazzo della Provincia Autonoma di Bolzano Alto Adige
Bolzano
2011
Concorso per un edificio amministrativo