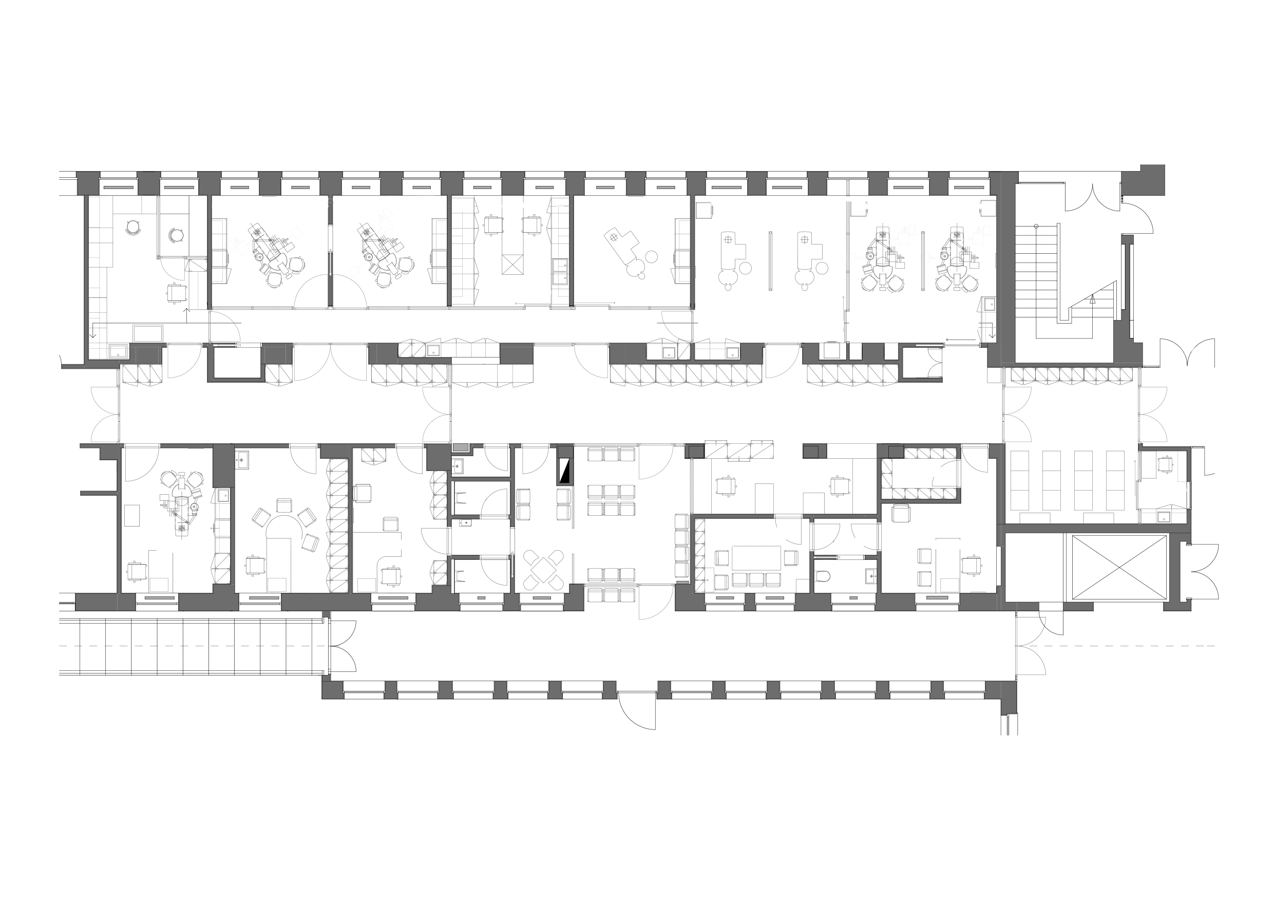
Zahnmedizin des Krankenhaus Bozen, 2014

Zahnmedizinische Abteilung des Krankenhauses
Bozen
2007 – 2014
Umgestaltung der Abteilung für Odontologie